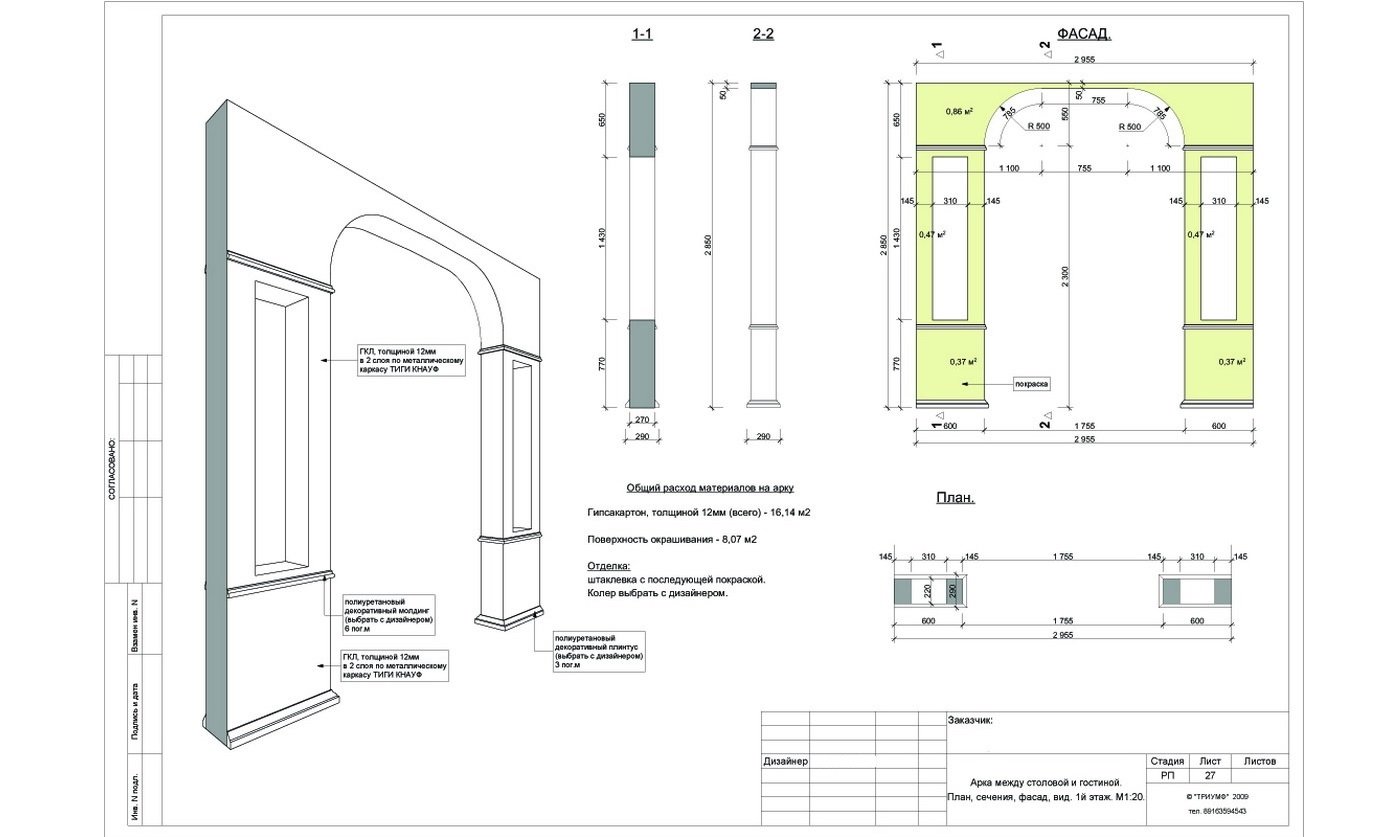
Крепление декоративных элементов на арку
После того как вы собрали основу арки из ДВП, настало время придать ей декоративный вид. Для этого можно использовать различные элементы, такие как фрезерованные детали, молдинги или декоративные резные элементы. Как правило, они крепятся на арку с помощью клея и крепежных элементов.
Перед началом работы необходимо определить места для крепежа декоративных элементов и обозначить их на арке. Затем нужно подготовить крепежные элементы: гвозди, саморезы, шурупы или металлические уголки. Прежде чем начинать крепить элементы на арку, следует предварительно покрыть ее грунтом, а затем нанести несколько слоев краски или лака, чтобы поверхность была гладкой и ровной.
Для крепления элементов на арку можно использовать клей ПВА или монтажный клей. Клей наносится на заднюю сторону декоративного элемента, а затем элемент прижимается к арке и удерживается на несколько минут, чтобы клей затвердел. После этого на арке устанавливаются крепежные элементы, которые закрепляют декоративный элемент на месте.
- Если вы используете гвозди или шурупы, то перед забивкой нужно предварительно заранее отверстия в декоративных элементах. Это поможет избежать изломов и трещин в элементах при креплении.
- Для крепления декоративных элементов удобно использовать металлические уголки. Они могут быть скрытыми и незаметными на арке и обеспечивают надежное крепление декоративных элементов.
Соблюдение всех этих рекомендаций поможет вам быстро и легко установить декоративные элементы на арки, что придаст вашей дверной арке оригинальный и привлекательный вид.
Выбор конструкции и расчет
Межкомнатная арка своими руками из гипсокартона не требует сложных расчетов, но предварительные вычисления все же нужны: требуется определить необходимое количество ГКЛ, профиля (или деревянного бруска), крепежа, выбрать саму форму.
Начальные данные для вычислений – размер существующего проема. Если планируется воздвигать перегородку из гипсокартона, как описано в статье, ограничителем будет желаемый размер, а не уже имеющийся в капитальной стене. В зависимости от того, как именно будет возводиться арка, рассмотрим два варианта действий.
Отделка существующего проема в капитальной стене (панели, кирпич, блоки)
Планировка дома может предполагать несколько вариантов ширины и высоты проема. Ниже приведены три типа классических арок для разных габаритов.
При этом следует соблюдать допустимое расстояние от верхней точки арки до уровня чистового потолка.
Уменьшение этого расстояния допустимо только в легких каркасных конструкциях и только с распределенной опорой перекрытия на каркас. В противном случае нагрузка от перекрытия на несущую стену окажется чрезмерной, может произойти провисание потолочной плиты или балок, разрушения участка стены или перекрытия.
В зависимости от существующих размеров проема и допустимого уменьшения расстояния от его верхней точки до потолка выбирается полуциркульная (справа) или лучковая (слева) форма дуги. Учитывается также возможность изгиба гипсокартонных листов (только в продольном направлении), для обычных панелей допустим изгиб с радиусом 300…1000 мм и более, на радиус сгиба влияет толщина листа. Чем тоньше лист, тем больше возможность изогнуть его желаемым образом.
После того, как размер арки и проема установлены, выполняется эскизный набросок будущей конструкции с указанием положения стоек и распорок каркаса, габаритами листов гипсокартона и размещением крепежа.
Сделать проем-арку своими руками можно без использования арочного профиля, применяя обычный с надсечками.
При расчете следует учитывать наличие или отсутствие боковых профилей, укрепляющих проем с обоих сторон и, соответственно, количество листов. Таким образом, для полуциркульной конструкции с усилением проема до самого низа с обеих сторон потребуется при начальном размере проема 900х2000 мм:
- прямые стойки (профиль угловой ПУ31/31 или стоечный ПС50/50) – 2000х4+900х2=9800 мм (округляем до 2 м);
- профиль радиусный (арочный) CD60 по длине арки с небольшим запасом – πх450х2=2 826 мм, округляем до 3 м. Вместо арочного можно использовать ПС50/50 той же длины, надсекая его боковые планки с шагом 30…50 мм;
- листы гипсокартона (для ширины стены в месте проема 250 мм) – 3 000х250 мм для арочной части (лучше специальную разновидность ГКЛ с продольными пазами), раскрой только в продольном направлении, и две планки длиной 2 000-450 = 1 550 мм с шириной 250 мм;
- также необходимо два (или четыре, в зависимости от конструкции) прямых подвеса для крепления арочного профиля или соответствующее количество соединительных элементов;
- дюбели для фиксации профиля к дверному проему, саморезы для крепления ГКЛ к профилю.
Создание перегородки с арочным проемом
Сделать дверную арку своими руками можно с не меньшим успехом в заново возводимой перегородке из ГКЛ. Чертеж такой конструкции представлен ниже.
Как видно из чертежа, кривая арочного проема достаточно сложна, имеет несколько сопряженных радиусных дуг, дополнительно конструкция имеет три прямоугольных небольших проема. Схема армирования перегородки основана на использовании нескольких вертикальных стоек полной длины и большого количества скрепляющих перемычек, а также арочного профиля. Общее количество необходимых материалов здесь посчитать сложнее, причем необходимо учитывать запас не менее 10…15% на случай непредвиденных сложностей при раскрое профиля и ГКЛ. Укрупненно расчет делается на основании данных чертежа:
- профиль ПС 75х40 мм – ((5х2 700)+(6х200)+3 200+500+790+450+(2х220)+130+600)х2=41 620 мм, округляем с учетом требуемого запаса до 50 м;
- арочный профиль 5 500х2 = 11 000 мм, 11 м (допустима замена ПС 50х50 мм);
- ГКЛ – две панели 3 200х2700 (на всю площадь перегородки 8,64 кв.м.). С учетом стандартного размера 1 200х2 500 мм (площадь листа 3 кв.м.) потребуется не менее трех листов;
- ГКЛ с продольными пазами или обычный – пластина с общим размером 5 500х200 мм (здесь 200 мм – толщина перегородки);
- соединительные элементы, дюбели, саморезы.
Монтажные работы
Сначала осуществляется устройство каркаса. Этапы выполнения этой работы своими руками:
- Отрезаем два отрезка профиля по высоте проема и один по ширине и закрепляем их в проеме, использую дюбеля с винтами.
- Теперь нужно приготовить дугообразную часть каркаса. Длина профиля для этой части определяется путем складывания двух величин – радиуса арки и высотой отступа от верхней части проема.
- Чтобы появилась возможность изогнуть профиль, нужно ножницами по металлу или болгаркой произвести надрезы в параллельных боковых частях профиля. Шаг расположения надрезов 4-8 см. После этого профиль изгибают, придавая ему необходимую форму.
- Закрепляем изготовленную часть каркаса, предварительно выровняв его.
- Готовый каркас обшиваем заготовками из гипсокартона. Сначала обшиваются фронтонные части, выкроив детали по размерам проема. Затем изготавливается внутренняя часть арки. Чтобы изогнуть заготовку из гипсокартона своими руками, необходимо с изнаночной стороны выполнить надрезы, не повреждая наружный слой. Подготовленную деталь из гипсокартона необходимо установить, закрепив на каркасе при помощи саморезов.

Какими бывают арки
Любой проём предусматривается в стенке либо перегородке в ходе возведения, либо же в следствии перепланировки помещений. По своей сути, дверная арка есть перемычкой полукруглой формы, венчающей проход между двумя простенками.
Существует около пятидесяти разных форм и стилей сооружения арок. Тут и стрельчатые, и подковообразные арки, параболические, килевидные, трёхлопастные и вогнутые – всего и не перечесть.

Они имеют кардинальные отличия в конфигурации, и важное значение тут имеет материал, из которого возводится арка. Сказать о том, что любую из них возможно при жажде выстроить своими руками (см
Арка своими руками — уникальное решение для интерьера), было бы неправильно. Но наиболее простые формы: полуциркульные, сегментные, эллиптические – в полной мере доступны для выкладки кирпичом. Во всяком случае, при постройке частных домов, арки выкладывают из кирпича — кроме того в случае если стенки возводятся из цементных блоков. Наряду с этим доступны лишь три формы арок. Свод полуциркульной арки, которую в противном случае именуют полной аркой, соответствует половинке круга – её несложнее начертить, и сделать шаблон.

Сложить её тяжелее всего, исходя из этого новичкам за неё лучше не браться, а дать предпочтение двум первым вариантам. О том, как выстроить арку в дверном проёме из кирпича, мы поведаем в следующей главе.
Монтируем арку из фанеры
Как сделать арку своими руками из древесины, не используя натуральный материал? Сегодня это не составляет труда, ведь дерево можно заменить фанерой. Чтобы правильно подсчитать количество необходимых материалов, в том числе и фурнитуры, первое, что делают опытные отделочники – создают эскиз.
Межкомнатная арка из фанеры
Для работы с фанерой вам пригодится такой подручный инструмент:
- Лобзик (или ножовка).
- Дрель.
- Шуруповерт.
- Наждачка.
- Приспособления для финишной отделки.
Так как фанера – достаточно уникальный материал, позволяющий создавать оригинальные и необычные формы, работать с ним нужно, соблюдая пошаговую инструкцию:
- Измерьте дверной проем и отметьте, какой размер будет иметь арочная дуга.
- Затем нужно обрезать полосу и тщательно обработать ее.
- Полученную полосу слегка увлажняют и оставляют на некоторое время.
- После проделанных манипуляций фанера будет податливой и с легкостью примет необходимую форму.
- Подготовленную планку выгибают нужным образом и сразу же вставляют в необходимый дверной проем, тщательно фиксируют и устанавливают распорки по углам.
Крепление фанерного листа в дверной проем
Формирование арки из фанеры. После того, как полотно установлено, нужно немного подождать, пока лист полностью высохнет и примет свой окончательный вид. На следующем этапе можно действовать двумя сценариями:
- Сформировать вставки из деревянных брусков и зашить поверхность гипсокартонном.
- Воспользоваться монтажной пеной, заполнив ею пустоты.
Отделочные работы
Арка из гипсокартона практически готова. Но как можно увидеть на фото, без отделки выглядит она не особо привлекательно. Рассмотрим, как можно выполнить оформление и обрамление собранного арочного проема своими руками.
Прежде всего, нужно зашпаклевать все швы и места расположения саморезов. На внешние края на шпаклевочный состав крепим перфорированный уголок, чтобы не возиться с выведением формы шпаклевкой.
Затем по всей поверхности арки наносим слой финишной шпаклевки, а после его высыхании, шлифуем поверхности, добиваясь гладкости. Осталось загрунтовать поверхность, после чего может выполняться чистовая отделка.
Как можно отделать арку? Выбранный вариант должен гармонично сочетаться с отделкой стены. К примеру, если стены оклеены обоями, этот же материал может быть применен для отделки арки.
Можно использовать и другие варианты, сочетающиеся с отделкой стены. Например, отделать межкомнатные арки искусственным камнем, плиткой, декоративной штукатуркой, можно использовать и комбинацию разных материалов. Насколько красивой и оригинальной может быть отделка арки можно посмотреть фото.
Итак, межкомнатные проемы в форме арок – это оригинальный и очень привлекательный способ украсить интерьер и оформить проем между смежными комнатами, не устанавливая дверь. При желании, изготовить арку самостоятельно не составит труда. А как можно интересно отделать арку можно увидеть на фото в журналах по интерьеру.
Арка в дверном проеме своими руками: монтаж гипсокартонной конструкции
Звучит, конечно, интригующе и громко, хотя на самом деле конструкции той, как говорится, с гулькин нос – даже несмотря на то, сколько о ней будет написано ниже. А ниже будет изложена полная последовательность ее изготовления. Выглядит она следующим образом.
- Установка верхнего профиля в проем. Его нужно будет подобрать исходя из толщины простенка – если он имеет размер 100мм, то нужен профиль UW шириной 75мм. Остальное расстояние – это две толщины гипсокартона (12,5мм*2). Просто отрезаем кусок нужного профиля по длине и прибиваем его к потолку дюбелями четко посередине простенка.
Заготовка из гипсокартона. Здесь тоже несложно – для начала необходимо вырезать прямоугольник. Так, чтобы он вошел в проем. Потом закрепить его на пару саморезов к потолочному профилю и нарисовать на гипсе арку нужной формы. В принципе, это можно сделать и без прикручивания гипса к профилю – с помощью большого циркуля или нитки с карандашом. В этом случае понадобится правильно рассчитать радиус закругления. После того, как арка будет нарисована на гипсокартоне, она вырезается ножом или пилкой, после чего делается вторая аналогичная заготовка из гипсокартона.
- Установка боковых профилей в проем. Теперь примеряем и определяемся с длиной боковых профилей, после чего, опять-таки, с помощью дюбелей крепим их в проеме – два профиля, один слева, другой справа. Здесь используется все тот же профиль для гипсокартона UW.
- Крепление первой гипсокартонной заготовки. Берем первую гипсокартонную заготовку и саморезами крепим ее к потолочному и боковым профилям.
- Установка арочного профиля. Теперь проделываем такую штуку – замеряем длину дуги арки рулеткой, отрезаем точно такой же профиль UW и кромсаем его на мелкие кусочки длиной по 50мм. Разрезать нужно только боковые полки – центр не трогаем. Когда с этим будет покончено, профиль можно легко будет согнуть, что, в общем-то, и нужно будет сделать. Гнем потихоньку и одновременно крепим к гипсокартону, повторяя форму дуги арки.
- Усиливаем конструкцию. Все, что здесь нужно сделать, это воткнуть перемычку между потолком и только что изогнутым профилем и закрепить ее небольшими саморезами по металлу. В качестве перемычки подойдет любой профиль – как UW, так и CW. Чтобы не покупать CW, лучше остановиться на UW. Кстати, стоит он дешевле.
Крепление второй гипсокартонной заготовки. Теперь закрываем вторую сторону – устанавливаем вторую гипсокартонную заготовку и все. Или почти все.
Подшивка торца арки полоской гипсокартона завершает работу по формированию арочного проема. Мочить ничего не нужно – как правило, эти арки являются довольно крутыми, и даже мокрый гипсокартон лопается при установке. Лучше этот процесс ломания контролировать. Делать это можно только одним способом – надрезами. С тыльной стороны, поперек длине гипсокартонной полосы, через каждые 50мм делаются надрезы. Прорезается только бумага – дальше по мере крепления полоски в местах надреза гипс будет аккуратно и ровно переламываться, формируя тем самым ломаную арку. Пугаться этого не стоит, так как все эти ломаные участки скругляются в процессе шпаклевания. Да, и еще одно – крепить нужно каждый сломанный фрагмент.
Материал для арки
Первый шаг – выбор материала, зависящий от многих факторов. Во-первых, арка должна отвечать важным требованиям: прочность, долговечность, практичность, безопасность, устойчивость к негативным воздействиям. Выбирайте материалы, выдерживающие повышенную влажность и механические воздействия, не выделяющие вредных веществ в окружающую среду, не меняющие свойства. Во-вторых, элемент должен органично вписаться в интерьер. Для изготовления межкомнатных арок применяются следующие материалы.
Гипсокартон
С ним легко работать, придавая арке любые формы и экспериментируя с дизайном: лист сгибается и режется. Материал может быть прочным, если выбрать подходящую толщину. Гипсокартон выдерживает прямые солнечные лучи, влажность, перепады температур. Он может выполнять функции основы, и допускается любая внешняя декоративная отделка.
Дерево
Эстетичный, благородный, безопасный и экологический чистый материал, вписывающийся в разные стили. Но деревянные арки, не обработанные специальными пропитками, подвержены изменениям окружающей среды: повышенной или пониженной влажности воздуха, перепадам температур, ультрафиолету. Под воздействием негативных факторов материал деформируется, растрескивается, разбухает, выгорает. В продаже есть готовые сборные межкомнатные арки, прошедшие обработку, не требующие сложного монтажа и ухода.
Пластик
Не распространённый материал, но он лёгок, имеет доступную цену и способен имитировать разные поверхности. Но пластиковая арка подвержена механическим воздействиям, провоцирующим трещины, царапины, сколы.
Пенопласт
Легкий и дешевый, из него изготавливаются арки разных форм, включая сложные. Элементы из этого материала фиксируются на основе клеем, шпаклюются и оформляются краской или штукатуркой. Но пенопласт подвержен механическим воздействиям и крошится из-за хрупкости.
Гипс
Используется для изготовления арок разных форм с колоннами или без них. Материал выглядит эстетично и привлекательно, но имеет значительный вес, теряет свои свойства при контактах с водой и разрушается при значительных механических воздействиях.
Кирпич
Доступный, относительно недорогой и простой в монтаже материал. Но он сужает проём и вписывается не во все стилистические направления. К минусам относится грубый неэстетичный вид. Но для отделки можно использовать тонкий облицовочный декоративный кирпич разных фактур и цветов.
Витражная арка
Преобразит вид арки, сделав её воздушной и лёгкой. Материал может быть прочным, но утолщение и специальная обработка (закалка, покрытие плёнкой) увеличивают стоимость и вес
Работать со стеклом непросто, и оно может покрываться сколами и трещинами при грубой и неосторожной эксплуатации
Декоративный камень
Применяется для отделки и отличается высокой прочностью и долговечностью. Можно приобрести готовую сборную конструкцию или декоративные элементы небольших размеров, позволяющие осуществлять облицовку разными способами. Но камень имеет значительную стоимость.
ДВП и ДСП
Это бюджетные и практичные варианты, предоставляющие возможность обустройства арки любой формы. Материалы можно дополнять разными покрытиями и отделочными материалами.
Как создать арочный проем
Впервые увидев конструкцию можно подумать, что ее монтаж сложен, однако, арка из гипсокартона своими руками может быть установлена даже теми, кто имеет небольшой опыт в строительстве. Главное – изучить пошаговую инструкцию перед тем, как приступить к процессу. Последовательность действий может быть следующей:
Произвести замеры дверного проема
Замеры. Этот этап, пожалуй, один из самых основных в ходе установки гипсокартонной арки в пространстве помещения.
Осуществить это действие нужно с полной ответственностью, ведь от правильных измерений зависит:
- Покупка необходимого количества материала.
- Подсчет требуемой суммы для осуществления процесса установки.
- Правильность и четкость обустройства конструкции.
- Гармоничность данной структуры в пространстве помещения.

Для замеров потребуется:
- Рулетка или сантиметр.
- Карандаш или специальный маркер для отметок.
- Строительный уровень. Этот прибор поможет сделать ровную конструкцию, независимо от того, насколько гладкие стены в помещении.
- Лист бумаги, на который будут записаны результаты замеров.
Инструменты для замера
Все перечисленные нюансы должны быть учтены на этапе процесса измерения параметров будущей конструкции.
Приобретение материалов и инструментов осуществляется после того, как необходимые измерения сделаны и подсчитано необходимое количество, требуемое для реализации задуманного. Лучше всего отправляться в строительный магазин с человеком, который разбирается в данной отрасли. Если же такой возможности не имеется, то стоит предпочесть торговую точку, которая проверена годами, где работают исключительные профессионалы и знатоки своего дела для получения полноценной консультации касательно выбора материалов для установки арки. Только отдав предпочтение качественной продукции, можно создать отличный дизайн помещения.
Советуем посмотреть: как сделать арочный проем.
https://youtube.com/watch?v=wmO6wpImiCc
Начало работ. Понятное дело, что установка гипсокартонной арки заключается не только в монтаже. Прежде всего, необходимо:
Освободить пространство от ненужных предметов и старых материалов, т.е., выбить стену в том месте, где будет в дальнейшем устанавливаться арка.
Подготовка арочного проема
- Подобрать в сети фото той конструкции, которая идеально впишется в интерьер дома, то есть той, которая предусматривалась на этапе замеров. Глядя на фото, будет проще осуществлять процесс монтажа арки из ГКЛ.
- Затем происходит монтирование в периметр внутренней металлической конструкции арки. Эта структура будет служить фундаментом, чтобы арочный проем был устойчивым и долговечным. Опять же, если балки под арочный проем монтируются самостоятельно, лучше подобрать подходящее фото, на котором в деталях можно рассмотреть конструкцию.
монтирование внутреннего металлического каркаса
Каркас из профиля для гипсокартонного материала нужно выполнять, строго следуя тщательным замерам. Сначала устанавливаются вертикальные балки, затем горизонтальные. Прикреплять их можно с помощью шуруповерта, дюбелей или жидкого клея.
Следующим этапом является вырезание требуемых деталей из гипсокартона, которые в дальнейшем будут закрепляться на каркас из металлических балок.
После установки основы под арку, приступают к оборудованию внешней части арки. Для этого потребуется подобрать подходящие по размеру полоски гипсокартона, которые прикрепляют в нужное место.
Крепление гипсокартона к конструкции арки
Затем начинается процесс установки основной части арки, той, которая придаст помещению завершенный вид. Есть масса способов, следуя которым выполняетсямонтаж главной части арки. Некоторые мастера фиксируют конструкцию с помощью специальных жидких шурупов, другие крепят гипсокартон на клей. Главное в этом процессе – четкость и внимательность. Нельзя отклоняться от параметров ни на миллиметр, потому что это может плохо повлиять на конечный результат.

Придерживаясь правильной очередности действий по установке межкомнатной арки, можно создать великолепный вид в пространстве помещения квартиры или дома.
Арка из дерева: как и из чего
Арка из дерева отличное решение, как для загородного дома, так и для офисов крупных фирм. Чаще всего используют стандартные виды проёмов (классика, модерн и другие). Для работы подойдут материалы из сосны, дуба, бука и красного дерева.
Самое дешевое дерево – сосна. Установка проводится без проблем – она отлично гнётся. Высокая прочность, со временем меняет свою текстуру: от розового до красного цвета.
Если в интерьере есть мебель из бука или дуба – деревянная арка должна быть соответствующая. Материалы имеют уникальный оттенок, долговечные.
Красное дерево – используют в правительственных помещениях, офисах крупных компаний, гостиницах, чтобы придать презентабельности и богатства.
Если есть необходимый материал, первый шаг при создании арки, как и при оформлении её гипсокартоном, необходимо очистить проём, установить направляющие, профиля и затереть неровности.

Как сделать арку в дверном проёме? Чтобы установить деревянную арку правильно, нужно учесть несколько важных моментов:
- Для овальных, закруглённых форм деревянная арка делается при помощи небольших закруглённых частей, которые затем соединяются скобками в целую конструкцию. Результат зависит от финальной обработки – затирания неровностей. Прямая конструкция состоит из ровных брусков, соединяется так же при помощи скоб.
- Чтобы прикрепить к каркасу нужно подготовить саморезы (для дерева). Готовую деревянную арку необходимо покрыть лаком (краской), так она прослужит дольше.
- При наличии вмятин – обработать специальным составом.
Больше узнать про этапы установки арки, смотреть видео:
Квартирные варианты арочных проемов
Хозяева могут преследовать несколько целей: создать общее пространство, расширить помещение, создать легкий и изящный дизайн и так далее. При желании стоит купить готовую арку в строительном отделе, в крайнем случае — приложить немного усилий и уделить немного времени, чтобы создать оригинальный и интересный вариант, который точно будет эксклюзивным.

Арка заполучила необычайное распространение
Чтобы облагородить проход из комнаты в комнату без применения двери, совсем необязательно вызывать наемную бригаду мастеров. Правильно подобрав тип и формат строения, вы спокойно сделаете все самостоятельно
Не менее важно грамотно подойти к выбору материалов, которые будут использоваться при создании данного элемента. Пошаговая инструкция, приведенная ниже, подскажет, как сделать все максимально правильно и избежать распространенных ошибок
Также читайте: Как утеплить потолок в доме с холодной крышей.
Различные виды арок имеют некоторые отличия в конструкции, что влияет на их дальнейший монтаж. Основные отличия заключаются именно в опорах конструкции.
Стоит отметить, что межкомнатные проемы не относятся к несущим
Поэтому важно подобрать арку, исходя из соответствующих параметров

Красивая арка между комнатами
Арочный проем, который используется вместо обычной двери, выполняется из нескольких материалов. Сейчас речь идет именно о каркасе всей конструкции:
- металлический профиль, на который сверху монтируются гипсокартонные листы (ГКЛ);
- деревянные бруски с сечением 20-30 мм.
Такой вид арки с легкостью удержит собственный и общий вес вместе с отделкой. Здесь главная задача — надежное и жесткое крепление к стенам. Это позволит уберечь элементы и оставаться на месте в первозданном виде не один год.
Интересная статья: Как сделать полочку в доме.
Ели речь идет о частном доме или же квартире, то арка открытого типа используется только как декоративный элемент. А вот вся несущая нагрузка в таком варианте оформления переносится на боковые бетонные стены или же перемычку над самим сооружением.

Покупная арка из пластика
Пошаговая инструкция
Если вы решились произвести работы по монтажу арки в прихожей, на кухне или на балконе – следуйте нижеприведенным рекомендациям:
- Демонтируйте старую дверь и наличники.
- Проведите расширение дверного проема до нужного размера.
- Подровняйте стены и заделайте все дефекты.
- Если конструкция будет с подсветкой, проведите проводку.
- Все замеры делайте в разных местах, чтобы минимизировать погрешности.
- При неровных стенах выбирайте глубину арки в самом толстом месте.
- Не поленитесь сделать эскиз в натуральную величину (это позволит не только максимально точно выполнить монтаж арки, но и предварительно оценить, как будет выглядеть арка).
- Начать работу по установке несущего каркаса нужно в такой последовательности:
- По периметру дверного проема создайте основной контур из профиля и зафиксируйте его на стене.
- Зафиксируйте каркасную систему.
Как правильно резать профиль
- Вертикальные направляющие установите с отступом от плоскости внутрикомнатной поверхности на толщину гипсокартона и добавьте к данным 2 мм (запас делают на штукатурку).
- Штукатуркой поверхность нужно раскатать до максимальной ровности.
- Чтобы из профиля создать полукруг, на нем делают надрезы с шагом 5-7см.
- Когда из профиля будет сформирована идеальная кривая, его устанавливают в нужное место и фиксируют к каркасу.
- Для большей прочности дугу нужно зафиксировать несколькими подвесами к горизонтальной верхней направляющей.
- Затем устанавливают поперечины с шагом в 40-60см.
- В результате должна получиться конструкция из металлических профилей в форме арки для дальнейшей обшивки.
Самостоятельная установка сводчатой арки
И даже более сложную арку со сводами можно воплотить в реальность при домашнем ремонте. Важный момент — просто оформить сводом вершину дверного проема не получится из эстетических соображений. Вам придется увеличивать высоту проема, чтобы проход между комнатами не напоминал давящий со всех сторон пиратский грот. Решите вопрос с расширением стенного проема или снесите стену и поставьте новую гипсокартонную конструкцию
Обратите внимание, что нарушать целостность и каким-либо образом менять несущие стены запрещено

А теперь — пошаговая инструкция, как сделать сводчатую арку в межкомнатной перегородке:
- Вариант с расширением проема. Размечаем границы будущего проема на существующем. К желаемой ширине арки добавьте 4 см по ширине и столько же по высоте. Отметьте засечками на стене. Далее через каждые 10 см надо пробить перфоратором сквозные отверстия в стенке и расширить проем дисковой пилой. Потом организуем основание для боковых панелей из гипсокартона или ДСП с монтажом на П-профиль. Как делается свод, вы увидите в отдельном разделе.
- Вариант с межкомнатной аркой из гипсокартона на новой стене. Перед установкой новой гипсокартонной стены нанесите вертикальную разметку с помощью отвеса на несущую стену, к которой будет примыкать конструкция. Возьмите обрезок профиля и перенесите разметку на противоположную стену. Установите и зафиксируйте дюбелями П-образный профиль ЦД по разметке. От боковин с двух сторон отложите на полу отрезки профиля, равные ширине гипсокартонной стенки до арочного проема, прикрутите эти элементы. Профиль по потолку займет всю ширину стены. Далее ведем две рейки от потолочного профиля и соединяем с концами отрезков на полу, чтобы получилось основание боковых арочных панелей. На раму монтируем поперечины с шагом 20 см, что способствует устойчивому положению ГКЛ (гипсокартонных листов), которые мы уложим на этот каркас. И на последнем этапе мы будем делать свод для арки.

Асимметричные
Гипсокартон достаточно гибкий и податливый материал. По этой причине из него можно создавать самые неожиданные геометрические решения. Асимметричная арка является не средством для разделения двух отдельных пространств, а конструкцией, которая делит на две части функциональные зоны в одном жилом помещении. Такие арки могут быть самыми неожиданными по форме, а именно:
- Ровными с одной стороны, с изгибами и нестандартными геометрическими решениями с другой.
- Округлые с одной стороны, и квадратной формы с другой.
- Овальные с двух сторон, но на одной из сторон содержать декоративные полочки, а на второй иметь гладкую поверхность.
Вид ассиметричной арки
Асимметричные гипсокартонные конструкции, которые можно в деталях рассмотреть на различных фото, созданные в специальных программах, помогут охарактеризовать индивидуальность жильцов квартиры или дома, а также внести изюминку в помещение в целом.
Какой арке из гипсокартона отдать предпочтение, конечно же, является личным мнением, модель выбирается индивидуально.

Применение арок в интерьере

Арки – это функциональный и стильный элемент, который может быть использован в различных комнатах дома. Многие дизайнеры предлагают использовать арки, чтобы создать иллюзию простора и уютного перехода из одной комнаты в другую. Кроме того, они также могут служить декоративным элементом.
- В гостиной или столовой: арка может соединять гостиную и столовую, разделяя пространство и создавая уютную обстановку. Украшение арки декоративной отделкой, например, молдингами или пилястрами, может привнести в интерьер некоторые дополнительные элементы стиля.
- В кухне: арка может быть использована для соединения кухни и столовой, создавая соответствующую зону. Некоторые дизайнеры также используют арки для закрытия кухонной рабочей зоны – это может быть полезно для скрытия беспорядка и сохранения эстетики.
- В спальне: арка может быть использована для создания открытого гардероба в спальне. Это не только добавляет красоту интерьеру, но и максимизирует использование пространства, особенно если гардероб встроенный или небольшой.
- В ванной комнате: арка может служить в качестве входа в ванную или душевую кабину. Это создает отдельную зону, где вы можете расслабиться и наслаждаться водными процедурами.
В целом, арки могут служить не только функциональной цели, но и добавлять красоту и стиль в ваш интерьер. Используйте свою фантазию и создайте уютный и комфортный дом, с помощью арок своими руками.
Облицовка каркаса арки гипсокартоном
После изготовления каркаса приступаем к работе с гипсокартоном.
- Вырежьте прямоугольный образец гипсокартонного листа шириной в дверной проем;
- Приложите его к конструкции арки и разметьте дугу, проведя карандашом вдоль согнутого профиля;
- Раскроите гипсокартон по сделанной разметке;
- Раскроите второй лист для второй стороны арки. У обеих заготовок должны быть одинаковые дуги.
- Зачистите края листа обдирочным рубанком или наждачной бумагой;
- Закрепите лист к каркасу, саморезами TN;
- Закрепляйте гипсокартон, саморезами гипсокартон-металл с шагом 15-20 см с обеих сторон арки. Расстояние от саморезов до края листа не менее 10 мм.
- Согните и закрепите гипсокартон на торце арки.
Закрепление гипсокартона на торце арки
Вырежьте полосу гипсокартона по размеру торца арки. Так как, в примере используем гипсокартон толщиной 9,5 мм, то гнуть его будем мокрым способом. В качестве шаблона используем остатки от гипсокартона, из которого вырезали арки.
Если не хотите использовать мокрый способ, то на стороне гипсокартона, который подвергается растяжению (внутренней стороне), нужно сделать продольные разрезы через 5-7 см. После такой нарезки полосу гипсокартона легко согнуть по нужной дуге, что и нужно сделать. Закрепите прорезанную полосу гипсокартона на конструкции арки. При этом саморезы нужно вворачивать в каждую прорезанную полосу. Начинать нужно с середины арки двигаясь к ее концам. Малярные работы производятся в соответствии с общим дизайном комнаты.
Раскрой элементов арки
Перед тем как приступить к сборке арки, необходимо распилить ДВП на соответствующие элементы размеров. Для этого нужно учесть ширину и высоту дверного проема, а также выбрать криволинейный шаблон для арки и перенести его на лист ДВП.
Далее следует разметить на листе ДВП необходимые детали: основу арки, крайние детали, внутренние элементы и, при необходимости, украшательные элементы. После этого приступайте к распиливанию деталей по указанным размерам. Рекомендуется использовать пилу для фанеры, чтобы избежать брака из-за прослоек.
Если детали не совпадают по размерам, поправки можно внести с помощью наждачной бумаги или фрезы. Но достигать точности нужно еще на стадии разметки, чтобы не приходилось исправлять уже готовые куски. Сложные элементы можно склеить из нескольких частей, обязательно герметично при этом склеивая поверхности.
- Основа арки – это изгибаемая в дугу деталь, которая определяет главную форму арки. Ее размеры зависят от высоты и ширины дверного проема. По умолчанию длина основной дуги должна быть равна половине ширины проема. На ней будут крепиться остальные элементы арки.
- Крайние детали – это элементы, крепящиеся на концах основной дугообразной детали. Они поддерживают главную кривизну и визуально завершают контур арки. Их размеры зависят от формы арки и могут быть различными.
- Внутренние элементы – это кривограммы и рассечки, которые вырезают из ДВП и закрепляют на гибкой основе. Они обеспечивают своего рода ребра жесткости, улучшают эстетику арки и позволяют лучше ее закрепить.
Следует отметить, что при подборе размеров лучше идти от минимальных значений, так как детали всегда можно подкорректировать позже. Также стоит помнить, что немного неровности и недостатков можно корректировать уже на финишной стадии отделки арки. Главное – правильно распилить и скрепить все элементы.

























