Классификация видов деревянных межэтажных лестниц
Вариантов межэтажных лестниц сегодня представлено очень много. Поэтому появилась необходимость их определенным образом классифицировать. Классификация осуществляется по следующим признакам:
- Внешнему виду;
- Конструктивным особенностям.
Согласно первому критерию выделяют следующие виды лестниц:
- Модульные;
- Винтовые;
- Маршевые;
- Комбинированные;
- Прямые;
- Криволинейные;
- Г, П и Т-образные;
- Компактные.
Относительно конструктивных особенностей лестницы бывают:
- Больцевыми;
- На косоурах;
- Чердачные (складные, выдвижные);
- На тетивах.
Модульные лестницы
Такая лестница собирается из различных элементов и отличается относительно небольшим расходом материалов. В этом случае каркас лестницы выполняется чаще всего из металла, чтобы обеспечить большую надежность.
Особенности конструкции:
- Срок эксплуатации достаточно высокий;
- Могут быть использованы декоративные панели и элементы;
- Форма и расцветка варьируются в широком диапазоне;
- Прочность ее повышенная.
Чаще всего изготавливается на заказ и собирается работниками компании на месте.
Винтовые лестницы
Особенности конструкции:
- Использование целесообразно при небольшой площади помещения;
- Конструктивно они очень сложные;
- Перемещаться по ним вдвоем или переносить мебель практически невозможно;
- При изготовлении требуют больших затрат.
Выглядят такие лестницы красиво, но практичность их заключается только в экономии пространства. Изготавливаться они могут из дерева полностью или с использованием металлических элементов в основании.
Маршевые лестницы
Могут быть одно- или многомаршевыми, поворотными или прямыми, располагаться самостоятельно или вдоль стен. Они имеют следующие особенности:
- Для таких лестниц необходимо большое пространство;
- Количество ступеней в марше недолжно быть более десяти. Они в этом случае делятся промежуточной площадкой;
- Может быть прямой или с поворотом.
Комбинированные лестницы
Представляют собой сочетание нескольких типов лестниц. Конструкция их очень сложная и предполагает в процессе возведения проведение точных расчетов. Используется преимущественно в больших домах, так как занимает очень много места. Для ее строительства лучше привлекать специалистов, так как своими руками крайне сложнобез определенных знаний сделать это.
Конструктивные особенности лестниц
Больцевые лестницы по общей конструкции аналогичны маршевым, но фиксация их осуществляется непосредственно к стене, а не к опоре. Поэтому такая лестница в деревянном доме смотрится легко и воздушно. Их отличает повышенная прочность, так как крепление ступеней осуществляется при помощи металлических стержней – больцев.
Ступени лестниц на косоурах крепят к балкам, располагающимся снизу, и повторяющим геометрию всей конструкции. При этом балки могут быть прямыми либо изогнутыми.
Лестницы на тетивах оснащаются боковыми балками, выполненными из металла или дерева, к которым ступени и фиксируются. Крепиться они могут к стене или специальным опорам.
Составляющие элементы деревянной лестницы
Основных конструктивных элемента в деревянной лестнице, которые присущи всем типам этих сооружений, всего два:
- Ступени, которые, в свою очередь, состоят из проступей, горизонтальных площадок, и подступенков, установленных на ребро досок, служащих опорой проступям и выполняющих декоративную функцию, закрывая пространство под лестницей. Проступенки, строго говоря, обязательным элементом не являются. Лестница без таких опор выглядит более воздушной и легкой, а прочностные характеристики выдерживаются за счет других конструктивных решений;
- Опоры, поддерживающие ступени. Они могут быть двух типов. Если опоры поддерживают ступени по бокам, они называются тетивами. Опорные балки, расположенные под ступенями – косоуры.
Все остальные элементы являются принадлежностью конкретных видов сооружений. Это могут быть:
- переходная площадка с опорными столбиками;
- перила, обеспечивающие безопасность и удобство перемещения по лестницам, особенно для детей и стариков;
- балясины, на которых устанавливаются перила. Они представляют собой вертикальные столбики и могут выполняться из различных материалов любой конфигурации в зависимости от стиля, в котором выполняется все сооружение;
- стойка, являющаяся опорным элементом винтовой лестницы. На нее с определенным шагом по спирали крепятся ступени;
- больцы, поддерживающие ступени болты. Эти элементы в определенных видах лестниц крепятся на стену и ступени.
Из какого дерева можно сделать лестницу
Выбор материала для лестницы зависит от предпочтений владельца дома или квартиры, характеристик дерева и стоимости на него. Различные породы имеют свои преимущества и недостатки:
- Клен. Лестница из данной породы получится самой прочной и долговечной. Цвет – светло коричневый. Недостаток кленовой лестницы – высокая цена.
- Лиственница. Цвет конструкции – золотисто-желтый или темно-желтый с коричневыми прожилками. Отлично переносит воздействия внешних факторов. Лестница из лиственницы получится прочной и твердой.
- Дуб. Особенность лестниц из дуба – чем они старше, тем темнее оттенок.
- Ель. Наиболее популярный материал из-за своей невысокой стоимости. Еловая древесина имеет однородную структуру и светлый оттенок.
- Сосна. Благодаря низкой плотности древесины, ее очень легко обрабатывать. Дополнительным преимуществом сосны является невысокая стоимость материала. К недостатку сосновой лестницы стоит отнести небольшой срок эксплуатации. Лестницу из сосны лучше всего устанавливать на даче, где она будет использоваться сезонно .
Возможно, Вас заинтересует информация про «теплые полы». Из этой статьи Вы узнаете, как утеплить пол своими руками.
Расчет параметров и размеров
После того, как с видом деревянной лестницы и ее составляющими определились, стоит подготовить весь необходимый материал. Но для этого нужно проделать расчеты будущей конструкции и ее чертеж. Вначале высчитываем все показатели. А именно:
- делаем расчет высоты всей деревянной лестницы. Этот показатель определяется как расстояние между чистовым полом первого этажа и чистовым полом второго этажа.
- высота и число ступенек. Согласно некоторым нормам в строительстве высота ступенек берется в диапазоне от 15 до 20 см . Как правило, берется среднее значение в 17 см . Количество ступенек определяется как частное от деления высоты всей лестницы на высоту каждой ступеньки. Если в результате получается неровное число, то можно уменьшить высоту нижней ступеньки.
- ширина проступи (верх ступени). Тут также существуют некоторые нормы. Этот показатель должен лежать в пределах от 22 до 40 см .
- делаем расчет ширины самой деревянной лестницы. Тут определенных правил нет. Этот показатель определяется в зависимости от наличия свободного пространства и необходимости.
- длина самой лестницы определяется умножением ширины проступи и количества ступеней. Иногда такой показатель может быть слишком большим и не помещаться в отведенное пространство. В этом случае можно либо уменьшить ширину проступи, либо сделать лестницу из двух маршей.
Также стоит продумать ширину просвета над лестницей. Когда вы будете подниматься по ступенькам, то над головой должно быть свободно, чтобы вы не ударились. Также рассчитывается длина косоура или тетивы.
Основные виды лестниц для дома: разнообразие форм и конструкций
О том, какой будет лестница в доме, необходимо задуматься на этапе проектирования или хотя бы во время строительства дома.
При этом важно уделить внимание ее конструктивным особенностям с учетом планировки дома, функционального зонирования пространства и, естественно, с соблюдением всех соответствующих строительных норм
Классифицировать лестницы для дома можно по нескольким критериям:
- по типу конструкции лестницы;
- по материалу, используемому для их изготовления;
- по типу конструкции несущих элементов;
- по крутизне подъема и другим.
Отдельно можно выделить разделение лестниц на открытые и закрытые: первые отличаются отсутствием подступенка и довольно популярны в домах, так как позволяют визуально облегчить конструкцию, пропуская при этом максимальное количество света.
Конструктивно лестница на второй этаж может быть:
- маршевой;
- винтовой;
- на больцах;
- консольной.
И если вторая и третья не отличаются особым многообразием, то наиболее удобными для эксплуатации, но «прожорливыми» в плане уничтожения полезного пространства в доме являются маршевые лестницы, которые отличаются большим разнообразием внутри своего вида и могут быть:
- одномаршевыми;
- прямыми;
- поворотными (с поворотом направления на 90° – четвертьоборотные, а на 180° – полуоборотные, на 360° – полнооборотные);
- криволинейными, которые могут возводиться с устройством площадок или без них, с использованием забежных ступеней.
Кроме трех основных видов для перемещения между этажами может использоваться и лестница-трансформер, которая популярна для мансард.
Их установка оправдана в том случае, если помещение отличается небольшими размерами или актуальность использования мансарды имеет сезонность – в этом случае такой выбор оправдан, так как такая лестница в собранном состоянии практически не занимает места, а при необходимости раскладывается одним движением руки.
Подготовка необходимого материала и инструментов
Зная все параметры конструкции, можно заготовить нужный материал. Деревянные лестницы можно изготовить из разных пород. Многие специалисты рекомендуют использовать дуб, бук или лиственницу. Но такие материалы довольно дороги. Наиболее чаще используются хвойные породы. Они достаточно прочные, легко поддаются обработке и стоят недорого.
При покупке древесины важно обратить внимание на ее качество. На досках не должно быть мест гниения, выпавших сучков и деформаций. Также проследите, чтобы древесина была хорошо высушена
Также проследите, чтобы древесина была хорошо высушена.
Для монтажа деревянной лестницы в доме вам понадобится:
- бруски для косоуров, их толщина должна быть не менее 50 мм , а ширина в соответствии с размерами ступенек. Длины бруска должно хватить на всю длину марша, сшивать два бруска не допускается;
- доски для проступи толщиной в 40 мм ;
- доски для подступков толщиной в 30 мм ;
- балясы, перила и другие дополнение лучше приобрести в готовом виде, они будут иметь более эстетичный вид;
- оцинкованные саморезы, шурупы и анкерные болты для крепления.
Кроме этого, необходимо подготовить инструмент для работы. А именно:
- приспособления для разметки и измерения (рулетка, линейки, строительный уголок);
- для проделывания отверстий нужна будет дрель (лучше электрическая);
- ножовка по дереву (для крупных деталей) и ножовка по металлу (для мелких деталей);
- отвертка или лучше шуруповерт с набором насадок;
- молоток и стамеска для делания пазов;
- рубанок (лучше электрический);
- шлифовальное полотно.
Ну и, конечно, под рукой должен находится подробно разработанный чертеж.
Выбираем какую лестницу построить
Лестницы могут быть маршевые и винтовые. Конструкция маршевой лестницы достаточно проста и является лучшим выбором, если вы планируете изготовить ее самостоятельно, однако для того, чтобы обеспечить приемлемый уклон и высоту ступенек, требуется немалая площадь. Такая лестница очень удобна в эксплуатации и выдерживает большую нагрузку. По ней можно легко поднимать мебель и прочие крупные предметы на второй этаж, кроме того, она более безопасна, поэтому будет лучшим выбором в том случае, если в доме живут дети или пожилые люди.
Винтовая лестница имеет более сложное устройство. Она используется в условиях ограниченного пространства, когда из-за нехватки площади не получается обеспечить безопасный уклон обыкновенной лестницы. К основным недостаткам можно отнести не слишком удобную конструкцию, которая затрудняет подъем и не позволяет переносить крупногабаритные предметы. Вместе с тем искусно выполненная винтовая лестницы обладает достаточной прочностью и может быть главным элементом интерьера.
Безопасность превыше всего!
Перед тем как приступить к изготовлению лестницы своими руками, необходимо позаботится о ее безопасности. Во-первых, она должна быть прочной и легко выдерживать нагрузку, в несколько раз превышающую вес человека среднего телосложения. Во-вторых, лестница должна быть удобной и эргономичной
В данном случае необходимо уделить большое внимание таким факторам, как высота ступеней, уклон лестницы, а также расположение и форма перил. Ступени должны иметь нескользкое покрытие, а промежутки между балясинами выбираются таким образом, чтобы ребенок не мог протиснуться через них и упасть
Виды лестниц
По своей конструкции лестницы подразделяются на множество видов и подвидов. Перед тем как начать строительство лестницы на второй этаж, необходимо определиться с ее типом, потому как их классификация идет по множеству признаков:
по назначению подразделяются на основные, которые используются регулярно в повседневной жизни; вспомогательные (к ним можно отнести лестницы для крыши, служебные и запасные лестницы). Выделяют также лестницы парадные, садово-парковые, движущиеся (эскалатор);
- в зависимости от места расположения различают внутренние лестницы, уличные лестницы, внутриквартирные и внутридомовые;
- по используемому материалу различают: деревянные (из дуба, сосны, бука, лиственницы, ясеня, кедра), бетонные (преимущественно из этого материала делаются лестницы в большинстве жилых и производственных помещениях), железобетонные, кирпичные, металлические, кованные, веревочные, из стекла и пластика, из естественных и искусственных камней; существуют также различные комбинированные варианты;
- лестницы подразделяются по типу конструкции: косоур, тетива, на больцах, консольные лестницы (парящая лестница), модульная;
- по наличию подступенка различают открытые, закрытые и полузакрытые лестницы;
- по количеству и конфигурации маршей лестницы подразделяются на одномаршевые, многомаршевые, поворотные (поворотными можно сделать П-образные, Г-образные лестницы и винтовые межэтажные);
в зависимости от формы различают прямые, забежные ступени и ступенями под названием «гусиный шаг».
Лестница своими руками может стать украшением дома и предметом гордости. Ее создание – очень увлекательный процесс, а определение вида лестницы, которую вы хотите сделать, — самый начальный и очень важный этап строительства, который поможет вам наиболее полно сформировать представление о том, как должна выглядеть вся конструкция в целом.
Виды лестниц в доме: материал и конструкция
Планировать лестницу нужно сразу на этапе составления проекта, так как необходимо учитывать форму и размер лестницы, а также ее монтаж и материал. Зачастую выходит так, что строительство лестницы, подбор материала и дизайна доверяется рабочим, и в результате владелец получает лишь типовую конструкцию без намека на индивидуальность.
Однако в таком стечении обстоятельств есть и положительный момент – открываются широкие возможности для реализации дизайнерского потенциала владельца дома.
В наши дни существуют варианты лестниц в доме различных конструкций из разнообразных материалов. Все зависит от потребностей хозяев дома и их финансовых возможностей.
Каждый из материалов для устройства лестниц имеет преимущества и недостатки. Использование зависит от конструктивных особенностей лестницы и особенностей ее применения в конкретном доме.
Прежде чем выбрать тот или иной вид конструкции лестницы, необходимо рассчитать его целесообразность и соответствие общему дизайну помещения. Существует несколько разновидностей лестниц, а именно: винтовая лестница, маршевая лестница, консольная лестница, лестница с применением металлоконструкции и, конечно, лестница из дерева.
- Бетонные лестницы используют в многоэтажных домах, в помещении и на улице. Они прочны, выдерживают большие нагрузки, не подвержены влиянию влаги, солнечного света, перепадам температур и могут служить очень долго. Однако бетонная лестница громоздкая, тяжелая и для ее установки требуется грузоподъемная техника.
- Каменные лестницы выглядят монументально и надежно. Ничем не уступают бетонным в эксплуатационных качествах. При этом стоимость материала и работ по установке невысоки. Однако такая конструкция занимает много места, а использовать полезную площадь под ней затруднительно.
- Металлические лестницы прочны и надежны, почти не подвергаются сырости, перепадам температур и другим внешним воздействиям. Металлические лестницы могут быть разной конструкции: от кованых в стиле ретро до хай-тек из нержавейки. Однако такие лестницы не всегда вписываются во внутренний интерьер помещения, их чаще применяют либо на улице – как лестницу на мансарду, либо в нежилых помещениях. Требуют постоянного ухода в условиях наружного расположения.
- Деревянные лестницы как нельзя лучше подходят для внутреннего интерьера. Экологически чистый материал, прекрасный внешний вид, доступная цена делают деревянные лестницы особенно популярными. Древесина подвержена гниению, но и этот недостаток успешно преодолевается при помощи современных технологий. Тем более что возможно комбинировать материалы: из металла выполняются несущие конструкции, а декоративные детали – из дерева.
Оптимальный вариант лестницы, предназначенной для подъема на второй этаж загородного дома, определяется размерами помещения, в котором ее планируется разместить. Совершенно нецелесообразно приобретать громоздкую конструкцию, если можно использовать более компактную ее модификацию, например, угловую.
Прямая лестница
Из какого материала лучше всего делать лестницу
Древесина, из которой будет изготавливаться лестница на второй этаж, должна быть хорошо высушенной, без сучков, сколов и трещин в массиве. Порода дерева – любая, но из доступных и недорогих пород на строительном рынке всегда можно найти сосну или ель.
Преимущества хвойных пород при изготовлении лестницы на второй этаж:
- Низкая себестоимость материала.
- Доступность по всех регионах РФ.
- Высокая смолистость пород, позволяющая древесине служить дольше.
- Высокая прочность на кручение и изгиб и твердость (2,5 кгс/мм2 по Бриннелю) при средних параметрах плотности (520 кг/м3).
Лиственные породы, детали из которых будут красиво выглядеть и долго служить на лестнице – дуб, береза, ясень, бук. Преимущества лиственных пород:
- Прочность на 50-100% выше, чем у сосны или ели, плотность выше на 30-50%.
- Длительный срок службы даже без предварительной обработки антисептиками и антипиренами.
- Меньший коэффициент водопроницаемости.
- Структура волокон на срезе красивее, чем у сосны.
После обработки морилкой и прозрачными ЛКМ все эти породы отличаются четким выделением текстуры, а также прочностью и износостойкостью, что необходимо для элементов лестницы, постоянно испытывающих разновекторные нагрузки.
Деревянные лестницы
Чертёж лестниц из дерева выполняется точно так же, как и металлических. Никаких принципиальных различий между ними не существует. Характер материала вносит небольшие коррективы в процесс разработки. В чертеже следует учитывать толщину дерева, используемого для устройства лестницы.
Необходимо предусмотреть способы крепления ступеней к боковым прогонам и нарисовать необходимые пазы в масштабе и с размерами. Деревянная лестница может скрепляться шурупами или гвоздями. Нужно учесть расстояния от края элементов до точки крепежа, чтобы избежать растрескивания и порчи изделия при установке шурупа.
Чертеж лестницы из дерева на два пролета
Изготовление деревянной лестницы своими руками гораздо проще, чем металлической. Материал дешевле, доступней и легче в обработке. Поэтому обычно чертёж для них не делают, предпочитая подбирать размеры по месту и оценивать уже собранную конструкцию.
Приступая к изготовлению лестницы своими руками, лучше всё рассчитать на бумаге и нарисовать чертёж и продумать расположение лестницы в доме, чтобы не потерять плоды своих размышлений. Если в процессе подготовки к работе вы сочтёте задачу слишком сложной, чертёж пригодится для мастера, который возьмётся выполнить эту работу. Более сложные лестницы следует рисовать в общих чертах, без лишней детализации.
Процесс сборки деревянной лестницы
Необходимо указывать габариты лестничной клетки, высоту, которую имеет этаж и желаемое количество ступеней. Эта информация послужит основой для конструкторов фирмы-производителя, которая возьмётся изготовить лестницу. Детальные чертежи они изготовят сами в соответствии со стандартом фирмы и представят вам вместе с готовым изделием при выполнении заказа.
Подготовка материалов
- При выборе породы дерева, если ориентироваться на разумное сочетание качество/цена, рекомендуется отдавать предпочтение сосне или лиственнице. Последняя даже лучше, так как менее подвержена гниению. К тому же при впитывании жидкости она становится только крепче. Так как в любом жилом помещении обязательно будут испарения – более чем актуально, особенно если в смежной комнате находится кухня. Все остальные породы – кедр, дуб и ряд иных – вряд ли относятся к бюджетным вариантам деревянной лестницы.
- Долговечность конструкции во многом зависит от степени просушки пиломатериала. Если древесина в этом плане недостаточно обработана, то такую лестницу довольно быстро «поведет». Высушивание досок своими руками – процесс и хлопотный, и сложный. Понадобится не только место для их складирования, но и знание всех особенностей методики. Придется обеспечить неизменность температуры, качественное проветривание и так далее. Вывод напрашивается однозначный – на материале для деревянной лестницы экономить нецелесообразно. То есть, если приобретать доски, то только высокой степени осушки, хотя они и стоят дороже.
Как сделать лестницу на второй этаж?
Если планируется установка винтовой лестницы, то специалисты рекомендуют приобретение готовой конструкции, монтаж которой не представляет особой сложности и производится в максимально сжатые сроки.
Строительство монолитной конструкции, под которой можно расположить даже вспомогательные помещения дома, должно проводиться одновременно с возведением дома, и эту работу лучше доверять специалистам.
Наиболее привлекательным вариантом для самостоятельного возведения являются деревянные лестницы, удерживающие лидирующие позиции по популярности у частных застройщиков. Для того, чтобы справиться с предстоящей работой на достойном уровне и без ошибок, потребуется предварительно составить подробный проект с указанием точных размеров каждого элемента.
Наиболее сложной и трудоемкой является в этом случае изготовление косоуров, для чего требуются особая точность и специальный инструмент. Поэтому в некоторых случаях отдают предпочтение конструкциям на тетиве, хотя по надежности они несколько уступают первым.
Важно для лестницы выбирать только качественную и сухую древесину толщиной 50 мм – для косоуров или тетивы, и 30-35 мм для ступеней, хотя для подступенков подойдет и доска 20 мм.
В некоторых случаях для увеличения ширины проступи могут изготавливаться элементы большего размера – в этом случае они на 1-2 см будут нависать над нижней ступенью, но при обработке таких деталей следует особое внимание уделить углам, которые обязательно следует закруглить и тщательно отшлифовать. Также перед сборкой лестницы желательно все элементы обработать антибактериальными составами и антипиренами
Окончательное окрашивание лучше делать в готовом виде, хотя допустимо и до монтажа, но в этом случае следует проявлять аккуратность для того, чтобы не повредить поверхность
Также перед сборкой лестницы желательно все элементы обработать антибактериальными составами и антипиренами. Окончательное окрашивание лучше делать в готовом виде, хотя допустимо и до монтажа, но в этом случае следует проявлять аккуратность для того, чтобы не повредить поверхность.
Заземление в частном доме своими руками. – здесь больше полезной информации.
Такие элементы, как перила и балясины, как правило, не изготавливают самостоятельно, за исключением случаев, если хозяин дома плотник или токарь, у которого в наличии есть необходимое оборудование.

Вас заинтересует эта статья – Технология холодного цинкования металла своими руками.
Порядок монтажа деревянной лестницы
1. Первыми устанавливаются несущие элементы: косоуры или тетивы, которые должны иметь несколько точек фиксации: на полу, к стене, плитам перекрытия или другим несущим конструкциям дома в зависимости от места расположения. Для их фиксации можно использовать надежные анкерные болты.
2. После установки обязательно надо проверить с помощью строительного уровня точность их монтажа и при необходимости произвести корректировку.
От этого фактора зависит не только удобство эксплуатации, но и надежность, а также долговечность лестницы.
3. На следующем этапе можно приступать к установке подступенков, но если они в конструкции отсутствуют, то проступей. Если все лестница имеет подступенки, то они являются основой для монтажа верхней части ступеней
При этом важно соблюдать правило: работы проводить исключительно снизу вверх, то есть первыми устанавливаются нижние ступени, а последними – верхние
4. Заключительным этапом является установка балясин и перил, которые следует надежно закрепить или к косоурам, или непосредственно к ступеням.
Проектирование и монтаж деревянной лестницы внутри дома.
Проектирование
Деревянная лестница, из-за риска пожароопасности устанавливается только в двухэтажных домах. Самое лучшее дерево для изготовления лестниц, это бук и дуб, благодаря их высокой устойчивости к истиранию. Монтаж деревянных лестниц приходится на тот момент, когда уже готовы крыша, окна, пол. в общем, в завершении этапа строительства, чтобы не повредить дерево. А вот проект лестницы следует начинать уже на начальном этапе строительства.
Проект лестницы должен рассчитываться с учётом её расположения, планировки дома, высоты, длины, ширины лестницы и толщины пола. С этими параметрами вы можете пойти в магазин или кампанию и купить там полный набор лестничных элементов готовых к сборке. Определённые модели лестниц, например винтовые, разделены всего на несколько частей, что сокращает время монтажа.
Самым популярным вариантом является заказ проекта деревянных лестниц. Вы вызываете на дом мастера, он всё замеряет и предлагает всевозможные виды и дизайны лестницы с учётом интерьера дома. Бывает и так, что талантливые владельцы приступают к проектированию и установке самостоятельно, от начала и до конца.
Самостоятельный проект лестницы
Для самостоятельного проектирования вам потребуется изучение строительных норм и правил, выбрать тип лестницы и сделать, как описано выше соответствующие замеры. Помните, что обычные одномаршевые лестницы занимают больше места, чем винтовые. Винтовая лестница с поворотом дешевле и проста в установке, но менее удобней прямой.
Модульная лестница это отдельные модули, которые легко связываются между собой. Она не так комфортна, как традиционная, но занимает меньше площади, а монтаж лестницы довольно прост. Как рассчитать лестницу, её правильное расположение, также могут помочь специализированные программы для ПК. Вы вводите в программу все замеры, она уже показывает наглядно предпочтительное расположение деревянной лестницы с учётом выбранного дизайна.
Проект — перила и ступеньки
Поручни лестницы должны быть высотой 90 см. Если вам нужны дополнительные поручни для детей, их устанавливают на высоте 60 см. Для лестницы шириной более 110 см. рекомендуется установить поручни по обе стороны. Обычно ограждение лестницы заполнено балясинами (крепления в виде столбиков соединяющие перила со ступенями) из дерева в виде различных форм, но бывают и исключения, так, современные деревянные лестницы сочетают в себе металлические, ажурные ограждения.
Установка
Рассмотрим стандартную установку простой деревянной лестницы, элементы лестницы – два основания, ступени, поручень и балясины.
для установки главного крепления — тетивы проведите по стене линию по высоте и расположению.
на тетиве отметьте места для стоек (балясины) и для крепления ступень. Для измерения количества ступенек делаем такой расчёт: если высота лестницы 160см. делим её на 17, получаем 9 — это количество ступенек. Для расчёта оптимальной высоты ступенек 160 делим на 9, получаем высоту ступенек почти 18 см.
на следующем этапе карандашом отмечаем места для шкантов, они будут держать ступеньки.
настенную тетиву крепим к стене с помощью глухарей. На второй тетиве собираем и соединяем ступени с настенной тетивой. Крепить будущие ступени можно к тетивам и с помощью вырезанных пазов.
в завершении устанавливаем балясины и поручень.
Производители досок для строительства часто пропитывают их химическими абразивами для защиты от насекомых и влаги, но зачем вам дышать химией в своём доме? Вы можете покрыть лестницу прозрачным лаком или покрасить в белый цвет, эти действия сохранят древесину от влаги и истирания. Можно всё оставить как есть, но помните, что в этом случае деревянная лестница рано или поздно будет подвержена изменениям.
Установка деревянных лестниц, достаточно сложна для людей, не имеющих основных знаний, можно читать инструкцию, но так и не понять строительные термины. И даже более того, различные виды лестниц устанавливаются и крепятся по разному, к примеру, установка сборной конструкции легка и проста, винтовая лестница собирается несколько иначе, но если это сборка и установка с нуля, здесь потребуется наглядный пример, что мы вам и предлагаем.
Как самостоятельно начертить схему лестницы для дома
При желании начертить схему своими руками, следует знать некоторые особенности, на которые обязательно стоит обратить внимание. Под рукой нужно иметь:
- Рулетку;
- Фломастер или мел, которым будут делаться отметки на поверхности стены, пола;
- Ручку или карандаш;
- Лист бумаги;
- Линейку;
- Циркуль.
Этих принадлежностей будет вполне достаточно, чтобы сделать нужные чертежи для деревянной лестницы в доме.
Пошаговые действия для нанесения чертежа
Когда дошли руки и человек начинает наносить на лист бумаги чертежи деревянных лестниц на второй этаж, следует действовать пошагово:

- Для начала следует определиться, какой будет лестница по конструкции.
Выполняя действия пошагово, придерживаясь очередности, сделать чертеж деревянной лестницы будет несложно.
На что обратить внимание
При осуществлении замеров обязательно обратить внимание на следующие факторы:

Учитывая данные детали, есть вероятность составления максимально точного чертежа лестницы, ведущей на верхний этаж.
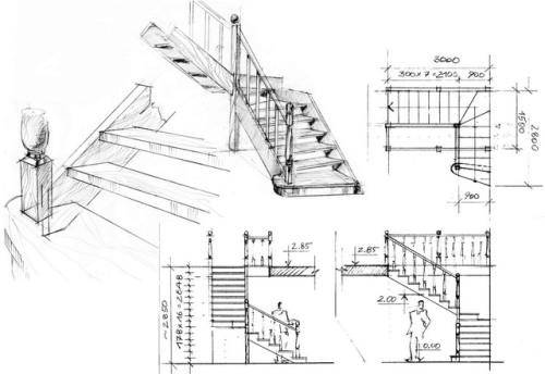
Чертёж лестницы
Определив все необходимые размеры, можно закончить чертёж, изобразив лестницу на бумаге в соответствии с масштабом. Лучше чертёж выполнять в конструкторской или графической программах, которые сегодня обычно используются для таких целей. Электронную версию чертежа легче корректировать и редактировать.
Сделанная своими руками работа, поможет воплотить идею в настоящее изделие. Даже элементарна лестница, чуть сложнее стремянки из металла или дерева, требует довольно сложных расчётов и перебора вариантов решений. Проектирование винтовых лестниц гораздо труднее, поскольку она меняет конфигурацию в трёх измерениях. Для этого обычно применяют специальные конструкторские программы, позволяющие сэкономить много усилий и времени, избежав при этом ошибок.
Расчет параметров и размеров
После того, как с видом деревянной лестницы и ее составляющими определились, стоит подготовить весь необходимый материал. Но для этого нужно проделать расчеты будущей конструкции и ее чертеж. Вначале высчитываем все показатели. А именно:
- делаем расчет высоты всей деревянной лестницы. Этот показатель определяется как расстояние между чистовым полом первого этажа и чистовым полом второго этажа.
- высота и число ступенек. Согласно некоторым нормам в строительстве высота ступенек берется в диапазоне от 15 до 20 см. Как правило, берется среднее значение в 17 см. Количество ступенек определяется как частное от деления высоты всей лестницы на высоту каждой ступеньки. Если в результате получается неровное число, то можно уменьшить высоту нижней ступеньки.
- ширина проступи (верх ступени). Тут также существуют некоторые нормы. Этот показатель должен лежать в пределах от 22 до 40 см .
- делаем расчет ширины самой деревянной лестницы. Тут определенных правил нет. Этот показатель определяется в зависимости от наличия свободного пространства и необходимости.
- длина самой лестницы определяется умножением ширины проступи и количества ступеней. Иногда такой показатель может быть слишком большим и не помещаться в отведенное пространство. В этом случае можно либо уменьшить ширину проступи, либо сделать лестницу из двух маршей.
Также стоит продумать ширину просвета над лестницей. Когда вы будете подниматься по ступенькам, то над головой должно быть свободно, чтобы вы не ударились. Также рассчитывается длина косоура или тетивы.
Основные составляющие элементы лестницы
Основные детали лестницы во многом будут зависеть от того, какой вид конструкции вы выбрали для сооружения.
Очень интересным и вполне бюджетным вариантом лестницы может быть лестница из бревен на даче или в частном доме в деревне. Постараемся на данном примере разобрать все возможные комбинации и варианты необходимых элементов лестницы.
Перечень необходимых элементов:
- каркас лестницы — бревенчатая лестница своими руками может выть выполнена на металлокаркасе (не совсем бюджетный вариант из-за дороговизны металла), но данный вариант довольно редко используется ввиду того, что наиболее гармонично лестница из бревен будет выглядеть при использовании деревянных косоуров, помимо этого также возможен вариант конструкции на больцах с использованием стоек перил и ступеней в качестве несущей конструкции;
- ступени – для самих ступеней лестницы и будут использоваться бревна, предварительно их необходимо распилить пополам, удобнее это будет сделать при помощи циркулярной пилы;
- маршевые пролеты и разделяющие их поворотные площадки;
- перила – возможны различные варианты, как деревянные, кованные, металлические, так и комбинированные, все зависит от ваших дизайнерских решений;
- балясины – стойки для перил;
- подступенок – использование подступенка в данном варианте лестниц не целесообразно.
Проектирование лестницы

Как ни странно, застройщики всерьез думают, что, экономя на проекте дома, они сохраняют свои деньги. В результате же все совсем наоборот, и один из ярких примеров – ситуация с лестницей. Именно при разработке проекта можно выбрать наиболее подходящее для нее место, где она бы занимала минимум площади, а также подобрать ее тип, основные характеристики (ширину марша, высоту и глубину ступеней и т.д.), материалы для каркаса и отделки, декоративные элементы и т.д. По проектным планам и разрезам легко просчитать параметры лестницы и расход материалов для ее изготовления.
При правильном расчете конструкции лестницы и грамотном ее размещении она может стать настоящей «изюминкой» интерьера даже в небольшом помещении, не говоря уже о просторных гостиных. Если же строить лестницу «на глаз», велика вероятность допущения ряда ошибок, которые потом исправить сложно или вообще невозможно.






























